
売却済み

◆◇2016年7月リノベーション済!愛犬のことを考えた『ペットリノベーション』登場!!
「ペット可」はあるけど「ペットのため」は無かった。◇◆
【床材】愛犬の足腰のことを考えて滑りにくく、かつ汚れ、傷に強くお手入れ簡単なフローリングを採用。
【床材(2)】人も愛犬も落ち着けるスペースとして滑りにくく汚れに強いガーデンタイルを採用。
【壁紙】ペット臭などを抑える消臭クロスを採用し、上下貼り分けしているので汚れたら下だけの貼替えで経済的。
【イオン発生器】匂いを抑えるためのイオン発生器を2台天井に埋め込みしております。
【ペットスペース】リビング収納の下に愛犬が安心して居られるペットスペースを設置しています。
※画像をタップすると拡大してご覧いただけます。
| 物件名 |
|---|
| チサンマンション祐天寺 |
| 価格 |
| 所在地 |
| 東京都目黒区上目黒5丁目 |
| 構造規模 |
| 鉄筋コンクリート造7階建2階部分 |
| 交通 |
| 東急東横線「祐天寺」駅 徒歩12分、東急東横線「中目黒」駅 徒歩15分、田園都市線「池尻大橋」駅 徒歩14分 |
| 用途地域 |
| 第2種中高層住居専用地域 |
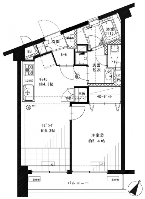
| 間取り/面積 |
| 1LDK |
| 土地面積 |
| 建物面積 |
| 40.57㎡ |
| 駐車場 |
| - |
| 建ぺい率・容積率 |
| 総戸数 |
| 47戸 |
| 築年月 |
| 1971年年3月 |
| 施工主 |
| ㈱地産 |
| 土地権利 |
| 所有権 |
| 管理費 |
| 7,700円/月 |
| 施工会社 |
| 佐田建設 |
| 修繕積立金 |
| 3,300円/月 |
| 管理会社 |
| 自主管理 |
| 引渡 |
| 売却済み |
| リフォーム・リノベーション |
| ≪ペットリノベーション内容≫ フローリング交換(ペット対応床:ホール/リビング/洋室/キッチン)、ペットスペース新設、エアーイー(イオン発生器)2ヵ所新設、リビングクロス張替(消臭クロス・上下振分け)、ガーデンタイル新設 ≪リノベーション内容≫ システムキッチン交換(食器洗浄機付き、浄水栓、浴室内全交換、洗面化粧台交換、シャワートイレ交換、防水パン交換、間取り変更(2DK⇒1LDK)、CF張替、エアコン2台交換、建具交換、カラーモニター付ドアホン新設、全室ダウンライト設置、シューズボックス新設、全室クロス張替 【2016年7月完了】 |
| 設備 |
| 備考 |
受付時間/9:00-18:00 定休日/第1.2火曜日・毎週水曜日