
売却済み

こちらの物件は、太い梁と柱、欄間細工を用いた伝統的日本建築の良いところを残し、
最新設備と断熱性能向上、耐震補強などの施工を融合し安心安全で
お洒落な『和モダンな家』 として完結させた" 古民家再生・プロジェクト" です。
またペットとの快適な暮らしを考えた「ペットリノベーション」も施しております。
【床材】愛犬の足腰のことを考えて滑りにくく、かつ汚れ、傷に強くお手入れ簡単なフローリングを採用。
【壁紙】ペット臭などを抑える消臭クロスを採用し、上下貼り分けしているので汚れたら下だけの貼替えで経済的。
【イオン発生器】匂いを抑えるためのイオン発生器を2台天井に埋め込みしております。
※画像をタップすると拡大してご覧いただけます。
| 物件名 |
|---|
| 千葉県若葉区古民家再生 |
| 価格 |
| 所在地 |
| 千葉県若葉区 |
| 構造規模 |
| 木造瓦葺平家建(軸組工法) |
| 交通 |
| JR総武本線「都賀」徒歩15分、千葉モノレール「都賀」徒歩15分 |
| 用途地域 |
| 第一種低層住居専用地域 |
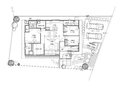
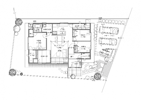
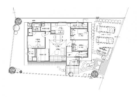
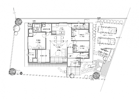
| 間取り/面積 |
| 4LDK |
| 土地面積 |
| 265.41㎡(実測) |
| 建物面積 |
| 110.22㎡(実測) |
| 駐車場 |
| 2台 |
| 建ぺい率・容積率 |
| 50%・100% |
| 総戸数 |
| 1戸 |
| 築年月 |
| 1983年7月7日 |
| 施工主 |
| (株)リノベプロジェクト |
| 土地権利 |
| 所有権 |
| 管理費 |
| 施工会社 |
| (株)ペンタくん |
| 修繕積立金 |
| 管理会社 |
| 引渡 |
| 売却済み |
| リフォーム・リノベーション |
| 2016年3月リノベーション完了 |
| 設備 |
| 公営水道、都市ガス、下水、追い炊き、ウォークインクローゼット …等 |
| 備考 |
| ホームインスペクション済み(耐震補強工事・断熱改修工事等) |
受付時間/9:00-18:00 定休日/第1.2火曜日・毎週水曜日