
売却済み

大人気地域『横浜市青葉区』フルリノベーション物件!!
田園都市線『青葉台駅』の西口を出て南に真っ直ぐ4分歩くと、サンモール青葉台へ到着します。
築年は古い物件ですが、エレベーターもあり集合ポスト等、共有部分もきれいに管理されております。
お部屋は、日当たり良好!さらに白を基調としているので、明るい印象のお部屋です。
※画像をタップすると拡大してご覧いただけます。
| 物件名 |
|---|
| サンモール青葉台 |
| 価格 |
| 所在地 |
| 神奈川県横浜市青葉区つつじが丘 |
| 構造規模 |
| 鉄筋コンクリート造地上5階地下1階建 |
| 交通 |
| 東急田園都市線『青葉台駅』 徒歩4分 |
| 用途地域 |
| 第一種低層住居専用地域、近隣商業地域 |
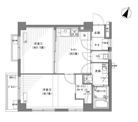
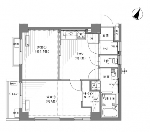
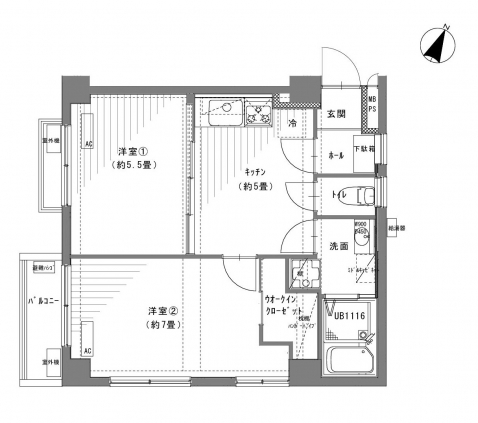
| 間取り/面積 |
| 2DK |
| 土地面積 |
| 建物面積 |
| 42.84㎡ |
| 駐車場 |
| - |
| 建ぺい率・容積率 |
| 総戸数 |
| 30戸 |
| 築年月 |
| 1973年9月 |
| 施工主 |
| 土地権利 |
| 所有権 |
| 管理費 |
| 施工会社 |
| 株式会社親和建設 |
| 修繕積立金 |
| 管理会社 |
| 株式会社東急コミュニティー |
| 引渡 |
| 売却済み |
| リフォーム・リノベーション |
| 《リノベーション内容》 システムキッチン交換(クリナップ)、浴室内交換(LIXIL)、洗面化粧台交換(Panasonic)、シャワートイレ交換(INAX)、建具交換(NODA)、フローリング交換(NODA)、ウォークインクローゼット新規設置、シューズボックス新規設置、全室照明交換、防水パン交換、全室クロス張替え、全室エアコン設置 |
| 設備 |
| エレベーター |
| 備考 |
受付時間/9:00-18:00 定休日/第1.2火曜日・毎週水曜日