
売却済み

小田急小田原線『百合ヶ丘駅』徒歩6分
新百合ヶ丘まで乗車約1分!!
※弊社売主の為、仲介手数料はかかりません!
☆フラット35S(優遇金利)利用可能☆
(最長35年の長期固定金利住宅ローンです。保証料0円、繰上返済手数料0円)
※画像をタップすると拡大してご覧いただけます。
| 物件名 |
|---|
| パークハイツ百合ヶ丘 |
| 価格 |
| 2,180万円 |
| 所在地 |
| 神奈川県川崎市麻生区高石4丁目17-1 |
| 構造規模 |
| 鉄骨鉄筋コンクリート造 7階建 3階部分 |
| 交通 |
| 小田急小田原線「百合ヶ丘」駅 徒歩6分 |
| 用途地域 |
| 第1種中高層住居専用地域 |
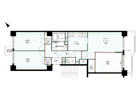
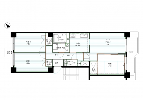
| 間取り/面積 |
| 3LDK |
| 土地面積 |
| - |
| 建物面積 |
| 75.10㎡ |
| 駐車場 |
| - |
| 建ぺい率・容積率 |
| - |
| 総戸数 |
| 153戸 |
| 築年月 |
| 昭和55年4月 |
| 施工主 |
| - |
| 土地権利 |
| 所有権 |
| 管理費 |
| 12,800円/月 |
| 施工会社 |
| 井上工業株式会社 |
| 修繕積立金 |
| 14,300円/月 |
| 管理会社 |
| 東急コミュニティ株式会社 |
| 引渡 |
| 相談 |
| リフォーム・リノベーション |
| 《リフォーム内容》 システムキッチン交換、浴室内交換、洗面化粧台交換、防水パン交換、給湯器交換、エアコン新設(1基)、シャワートイレ交換、照明交換、全室クロス張替え、全室フローリング張替え、襖張替え、畳表替え、玄関フロアタイル張替え、洗面室・トイレクッションフロア張替え、ハウスクリーニング 【2021年1月上旬完成】 |
| 設備 |
| エレベーター/都市ガス/公営水道/駐輪場/バイク置場 |
| 備考 |
| エレベーター停止階/管理体制良好/ペット不可【取引態様:売主】 |
受付時間/9:00-18:00 定休日/第1.2火曜日・毎週水曜日