
売却済み

☆新幹線停車駅「小田原」駅 戸建てリノベーション!
☆市立病院、市役所、スーパーが徒歩圏の立地!
☆床下防蟻処理!
☆売主物件によりコミッションフリー!
☆Access
2沿線利用可
・JR線・小田急線「小田原」駅 徒歩24分・小田急線「足柄」駅徒歩19分
・伊豆箱根大雄山線「井細田」駅 徒歩16分
☆セールスポイント
・市立病院徒歩10分
・市役所徒歩12分
・ス-パ-さえんふーず徒歩5分
・新耐震物件
・売主物件
・瑕疵保険(国交省指定)保証付
・フラット35Sに対応
※画像をタップすると拡大してご覧いただけます。
| 物件名 |
|---|
| 小田原市 久野 戸建て |
| 価格 |
| 所在地 |
| 神奈川県小田原市久野665-21 |
| 構造規模 |
| 木造2階建(軸組工法) |
| 交通 |
| 東海道新幹線「小田原」歩24分、小田急小田原線「足柄」歩19分、伊豆箱根大雄山線「井細田」歩16分 |
| 用途地域 |
| 1種住居 |
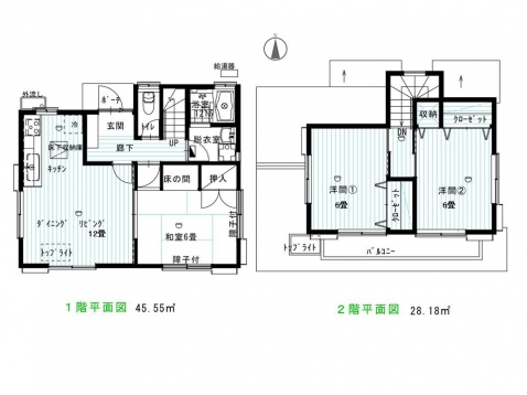
| 間取り/面積 |
| 3LDK |
| 土地面積 |
| 74.47m2(登記) |
| 建物面積 |
| 72.7m2(登記) |
| 駐車場 |
| 近隣月極駐車場あり |
| 建ぺい率・容積率 |
| 60%・200% |
| 総戸数 |
| 築年月 |
| 1993年7月 |
| 施工主 |
| 土地権利 |
| 所有権 |
| 管理費 |
| 施工会社 |
| 修繕積立金 |
| 管理会社 |
| 引渡 |
| 即入居可 |
| リフォーム・リノベーション |
| (2022.4月中旬)〇外壁・屋根塗装 〇交換(門扉・玄関扉・建具・トイレ・洗面化粧台・浴室・システムキッチン・レンジフード・ドアホン・シューズボックス・照明・洗濯パン・給湯器・ポスト)〇貼替(フローリング・クロス・洗面床・トイレ床) 〇新規(収納造作・エアコン1基・階段手摺・南側柵設置)〇ルームクリーニング 〇床下防蟻処理 |
| 設備 |
| 公営水道 / 本下水 / 個別LPG / システムキッチン / 陽当り良好 / 山が見える / 駅まで平坦 / 閑静な住宅地 / 前道6m以上 / 和室 / シャワー付洗面化粧台 / 3面採光 / 2階建 / 南面バルコニー / 温水洗浄便座 / 浴室に窓 / TVモニタ付インターホン / リノベーション / 通風良好 / 全居室6畳以上 / 平坦地 |
| 備考 |
| 景観法による規制有、高度地区、準防火地域、日影制限有 |
受付時間/9:00-18:00 定休日/第1.2火曜日・毎週水曜日