
販売中

☆かし保険安心リノベ住宅!
☆東海道本線「二宮」駅・「国府津」駅 利用可!
☆西湘バイパス「橘」インターより車で3分!
☆海岸まで徒歩8分!
☆南西角地で日当たり良好!
☆売主物件により仲介手数料不要!
☆Access
・東海道本線「二宮」駅 バス6分 「橘中学校入口」停徒歩2分
・東海道本線「国府津」駅バス8分「橘中学校入口」停徒歩2分
☆セールスポイント
・海まで徒歩8分 ・南西角地 ・日当り良好
・瑕疵保険保証付 ・防湿防蟻処理
・橘インター車3分 ・新耐震物件
※画像をタップすると拡大してご覧いただけます。
| 物件名 |
|---|
| 小田原市 中村原 戸建て |
| 価格 |
| 1780万円 |
| 所在地 |
| 神奈川県小田原市中村原178-8 |
| 構造規模 |
| 木造2階建(軸組工法) |
| 交通 |
| JR東海道本線「二宮」バス6分橘中学校入口歩2分、JR東海道本線「国府津」バス8分橘中学校入口歩2分 |
| 用途地域 |
| 準工業 |
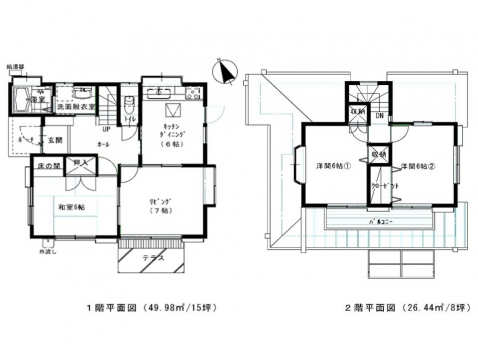
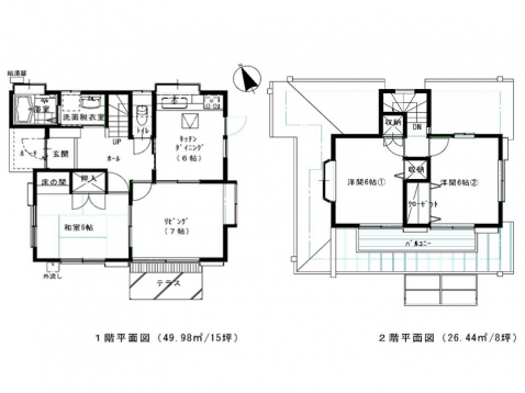
| 間取り/面積 |
| 3LDK |
| 土地面積 |
| 164.44m2(登記) |
| 建物面積 |
| 96.42m2(登記) |
| 駐車場 |
| 1台 |
| 建ぺい率・容積率 |
| 60%・200% |
| 総戸数 |
| 1戸 |
| 築年月 |
| 1986年1月 |
| 施工主 |
| 土地権利 |
| 所有権 |
| 管理費 |
| 施工会社 |
| 修繕積立金 |
| 管理会社 |
| 引渡 |
| 即入居可 |
| リフォーム・リノベーション |
| ☆リフォーム内容(2022.12月23日) 〇外壁塗装 〇交換(玄関扉・建具・トイレ・洗面化粧台・浴室・システムキッチン・レンジフード・ドアホン・シューズボックス・カーテンレール・照明・洗濯パン・給湯器・ポスト)〇貼替(フローリング・クロス・洗面床・トイレ床) 〇新規(収納造作・エアコン1基)〇ルームクリーニング 〇防湿・防蟻 |
| 設備 |
| 設備:公営水道、個別浄化槽、個別LPG、駐車場:カースペース |
| 備考 |
| 景観法による規制有、日影制限有 |
受付時間/9:00-18:00 定休日/第1.2火曜日・毎週水曜日