売却済み
千葉県若葉区古民家再生

こちらの物件は、太い梁と柱、欄間細工を用いた伝統的日本建築の良いところを残し、
最新設備と断熱性能向上、耐震補強などの施工を融合し安心安全で
お洒落な『和モダンな家』 として完結させた" 古民家再生・プロジェクト" です。
またペットとの快適な暮らしを考えた「ペットリノベーション」も施しております。
【床材】愛犬の足腰のことを考えて滑りにくく、かつ汚れ、傷に強くお手入れ簡単なフローリングを採用。
【壁紙】ペット臭などを抑える消臭クロスを採用し、上下貼り分けしているので汚れたら下だけの貼替えで経済的。
【イオン発生器】匂いを抑えるためのイオン発生器を2台天井に埋め込みしております。
物件動画
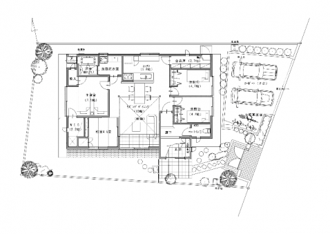
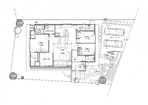
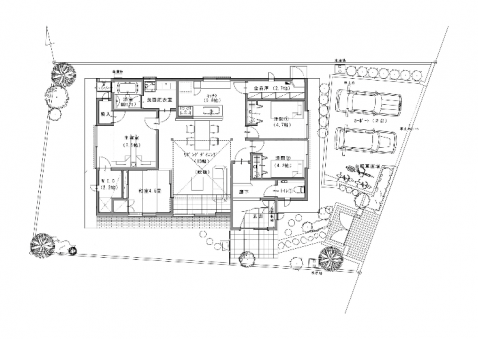
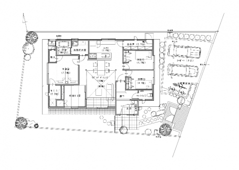
物件概要
| 物件名 | 千葉県若葉区古民家再生 | 価格 | |
|---|---|---|---|
| 所在地 | 千葉県若葉区 | 構造規模 | 木造瓦葺平家建(軸組工法) |
| 交通 | JR総武本線「都賀」徒歩15分、千葉モノレール「都賀」徒歩15分 | 用途地域 | 第一種低層住居専用地域 |
| 間取り/面積 | 4LDK | 土地面積 | 265.41㎡(実測) |
| 建物面積 | 110.22㎡(実測) | 駐車場 | 2台 |
| 建ぺい率 ・容積率 |
50%・100% | 総戸数 | 1戸 |
| 築年月 | 1983年7月7日 | 施工主 | (株)リノベプロジェクト |
| 土地権利 | 所有権 | 管理費 | |
| 施工会社 | (株)ペンタくん | 修繕積立金 | |
| 管理会社 | 引渡 | 売却済み | |
| リフォーム・ リノベーション |
2016年3月リノベーション完了 | ||
| 設備 | 公営水道、都市ガス、下水、追い炊き、ウォークインクローゼット …等 | ||
| 備考 | ホームインスペクション済み(耐震補強工事・断熱改修工事等) | ||

03-6453-4661






















