売却済み
片倉ハイツ

◆◇愛犬のことを考えた『ペットリノベーション』登場!!
「ペット可」はあるけど「ペットのため」は無かった。◇◆
【床材】愛犬の足腰のことを考えて滑りにくく、かつ汚れ、傷に強くお手入れ簡単なフローリングを採用。
【イオン発生器】匂いを抑えるためのイオン発生器を2台天井に埋め込みしております。
【ペットスペース】リビング収納の下に愛犬が安心して居られるペットスペースを設置しています。
物件動画
物件概要
| 物件名 | 片倉ハイツ | 価格 | |
|---|---|---|---|
| 所在地 | 神奈川県横浜市神奈川区片倉5 | 構造規模 | 鉄筋コンクリート造7階建1階部分 |
| 交通 | 横浜市営地下鉄ブルーライン「片倉町」駅 徒歩8分 | 用途地域 | 第一種低層住居専用地域・第一種住居地域 |
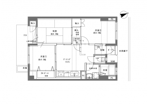
| 間取り/面積 | 3DK | 土地面積 | |
| 建物面積 | 53.32㎡ | 駐車場 | 空無 |
| 建ぺい率 ・容積率 |
総戸数 | 70戸 | |
| 築年月 | 昭和44年3月 | 施工主 | |
| 土地権利 | 所有権 | 管理費 | 8,300円 |
| 施工会社 | 大成建設株式会社 | 修繕積立金 | 15,000円 |
| 管理会社 | 東京互光株式会社 | 引渡 | 売却済み |
| リフォーム・ リノベーション |
≪ペットリノベーション≫ フローリング交換、ペットスペース新設、エアーイー(イオン発生器)1ヵ所新設、消臭クロス張替え(玄関・ダイニング・洋室①・洋室②) ≪通常リノベーション≫ システムキッチン交換(食洗機付き)、浴室内全交換、洗面化粧台交換、シャワートイレ交換、防水パン交換、給湯器交換、エアコン3台新設、間仕切り3枚引き戸、全室照明交換 【2018年9月1日完成】 | ||
| 設備 | エレベーター | ||
| 備考 | |||

03-6453-4661



















