売却済み
パークハイツ百合ヶ丘

小田急小田原線『百合ヶ丘駅』徒歩6分
新百合ヶ丘まで乗車約1分!!
※弊社売主の為、仲介手数料はかかりません!
☆フラット35S(優遇金利)利用可能☆
(最長35年の長期固定金利住宅ローンです。保証料0円、繰上返済手数料0円)
物件動画
物件概要
| 物件名 | パークハイツ百合ヶ丘 | 価格 | 2,180万円 |
|---|---|---|---|
| 所在地 | 神奈川県川崎市麻生区高石4丁目17-1 | 構造規模 | 鉄骨鉄筋コンクリート造 7階建 3階部分 |
| 交通 | 小田急小田原線「百合ヶ丘」駅 徒歩6分 | 用途地域 | 第1種中高層住居専用地域 |
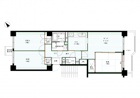
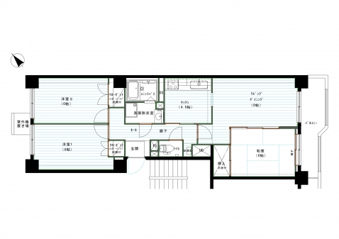
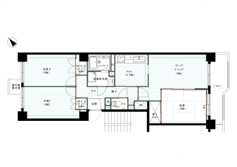
| 間取り/面積 | 3LDK | 土地面積 | - |
| 建物面積 | 75.10㎡ | 駐車場 | - |
| 建ぺい率 ・容積率 |
- | 総戸数 | 153戸 |
| 築年月 | 昭和55年4月 | 施工主 | - |
| 土地権利 | 所有権 | 管理費 | 12,800円/月 |
| 施工会社 | 井上工業株式会社 | 修繕積立金 | 14,300円/月 |
| 管理会社 | 東急コミュニティ株式会社 | 引渡 | 相談 |
| リフォーム・ リノベーション |
《リフォーム内容》 システムキッチン交換、浴室内交換、洗面化粧台交換、防水パン交換、給湯器交換、エアコン新設(1基)、シャワートイレ交換、照明交換、全室クロス張替え、全室フローリング張替え、襖張替え、畳表替え、玄関フロアタイル張替え、洗面室・トイレクッションフロア張替え、ハウスクリーニング 【2021年1月上旬完成】 | ||
| 設備 | エレベーター/都市ガス/公営水道/駐輪場/バイク置場 | ||
| 備考 | エレベーター停止階/管理体制良好/ペット不可【取引態様:売主】 | ||

03-6453-4661




















