売却済み
小田原市 久野 戸建て

☆新幹線停車駅「小田原」駅 戸建てリノベーション!
☆市立病院、市役所、スーパーが徒歩圏の立地!
☆床下防蟻処理!
☆売主物件によりコミッションフリー!
☆Access
2沿線利用可
・JR線・小田急線「小田原」駅 徒歩24分・小田急線「足柄」駅徒歩19分
・伊豆箱根大雄山線「井細田」駅 徒歩16分
☆セールスポイント
・市立病院徒歩10分
・市役所徒歩12分
・ス-パ-さえんふーず徒歩5分
・新耐震物件
・売主物件
・瑕疵保険(国交省指定)保証付
・フラット35Sに対応
物件動画
物件概要
| 物件名 | 小田原市 久野 戸建て | 価格 | |
|---|---|---|---|
| 所在地 | 神奈川県小田原市久野665-21 | 構造規模 | 木造2階建(軸組工法) |
| 交通 | 東海道新幹線「小田原」歩24分、小田急小田原線「足柄」歩19分、伊豆箱根大雄山線「井細田」歩16分 | 用途地域 | 1種住居 |
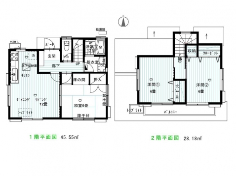
| 間取り/面積 | 3LDK | 土地面積 | 74.47m2(登記) |
| 建物面積 | 72.7m2(登記) | 駐車場 | 近隣月極駐車場あり |
| 建ぺい率 ・容積率 |
60%・200% | 総戸数 | |
| 築年月 | 1993年7月 | 施工主 | |
| 土地権利 | 所有権 | 管理費 | |
| 施工会社 | 修繕積立金 | ||
| 管理会社 | 引渡 | 即入居可 | |
| リフォーム・ リノベーション |
(2022.4月中旬)〇外壁・屋根塗装 〇交換(門扉・玄関扉・建具・トイレ・洗面化粧台・浴室・システムキッチン・レンジフード・ドアホン・シューズボックス・照明・洗濯パン・給湯器・ポスト)〇貼替(フローリング・クロス・洗面床・トイレ床) 〇新規(収納造作・エアコン1基・階段手摺・南側柵設置)〇ルームクリーニング 〇床下防蟻処理 | ||
| 設備 | 公営水道 / 本下水 / 個別LPG / システムキッチン / 陽当り良好 / 山が見える / 駅まで平坦 / 閑静な住宅地 / 前道6m以上 / 和室 / シャワー付洗面化粧台 / 3面採光 / 2階建 / 南面バルコニー / 温水洗浄便座 / 浴室に窓 / TVモニタ付インターホン / リノベーション / 通風良好 / 全居室6畳以上 / 平坦地 | ||
| 備考 | 景観法による規制有、高度地区、準防火地域、日影制限有 | ||

03-6453-4661





















