
売却済み

◆◇愛犬のことを考えた『ペットリノベーション』登場!!
「ペット可」はあるけど「ペットのため」は無かった。◇◆
【床材】愛犬の足腰のことを考えて滑りにくく、かつ汚れ、傷に強くお手入れ簡単なフローリングを採用。
【壁紙】ペット臭などを抑える消臭クロスを採用。
【イオン発生器】匂いを抑えるためのイオン発生器を2台天井に埋め込みしております。
【キッチン】危険物が多いキッチンにはガードフェンスを設置しており、ペットだけでなく小さなお子さんがいらっしゃるご家庭にも安心です。
【ペットスペース】リビング収納の下に愛犬が安心して居られるペットスペースを設置しています。
※画像をタップすると拡大してご覧いただけます。
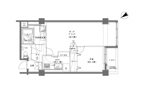
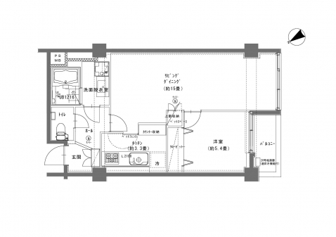
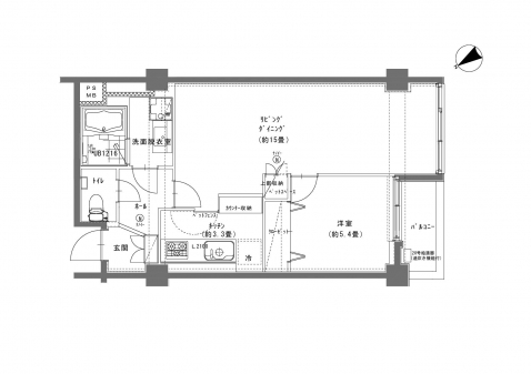
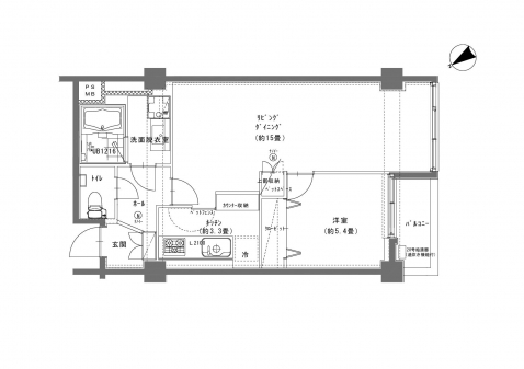
| 物件名 |
|---|
| 牛込中央マンション |
| 価格 |
| 所在地 |
| 東京都新宿区弁天町150 |
| 構造規模 |
| 鉄筋コンクリート造6階建2階部分 |
| 交通 |
| 大江戸線「牛込柳町」駅 歩5分 東西線「早稲田」駅 徒歩8分 |
| 用途地域 |
| 第一種中高層住居専用地域 |
| 間取り/面積 |
| 1LDK |
| 土地面積 |
| 建物面積 |
| 55.27㎡ |
| 駐車場 |
| - |
| 建ぺい率・容積率 |
| 総戸数 |
| 31戸 |
| 築年月 |
| 昭和42年5月 |
| 施工主 |
| 土地権利 |
| 所有権 |
| 管理費 |
| 10,000円 |
| 施工会社 |
| 株式会社藤田組 |
| 修繕積立金 |
| 23,900円 |
| 管理会社 |
| 自主管理 |
| 引渡 |
| 売却済み |
| リフォーム・リノベーション |
| ≪ペットリノベーション≫ フローリング交換(ペット対応床:ホール/リビング/洋室/キッチン)、ペットスペース新設、エアーイー(イオン発生器)2ヵ所新設、リビングクロス張替(消臭クロス) ≪通常リノベーション内容≫ システムキッチン交換、浴室内全交換、洗面化粧台交換、シャワートイレ交換、防水パン交換、間取り変更、建具交換、全室ダウンライト設置、全室クロス張替 【2018年6月完成】 |
| 設備 |
| エレベーター |
| 備考 |
受付時間/9:00-18:00 定休日/第1.2火曜日・毎週水曜日