
売却済み

◆◇愛犬のことを考えた『ペットリノベーション』登場!!
「ペット可」はあるけど「ペットのため」は無かった。◇◆
【床材】愛犬の足腰のことを考えて滑りにくく、かつ汚れ、傷に強くお手入れ簡単なフローリングを採用。
【イオン発生器】匂いを抑えるためのイオン発生器を2台天井に埋め込みしております。
【ペットスペース】リビング収納の下に愛犬が安心して居られるペットスペースを設置しています。
※画像をタップすると拡大してご覧いただけます。
| 物件名 |
|---|
| 片倉ハイツ |
| 価格 |
| 所在地 |
| 神奈川県横浜市神奈川区片倉5 |
| 構造規模 |
| 鉄筋コンクリート造7階建1階部分 |
| 交通 |
| 横浜市営地下鉄ブルーライン「片倉町」駅 徒歩8分 |
| 用途地域 |
| 第一種低層住居専用地域・第一種住居地域 |
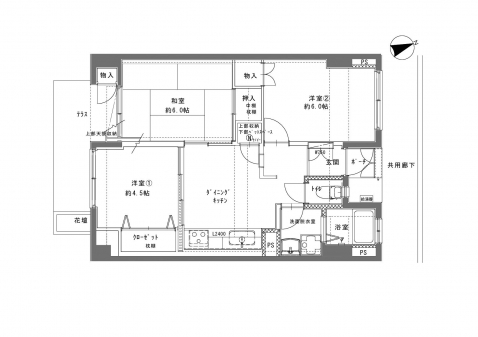
| 間取り/面積 |
| 3DK |
| 土地面積 |
| 建物面積 |
| 53.32㎡ |
| 駐車場 |
| 空無 |
| 建ぺい率・容積率 |
| 総戸数 |
| 70戸 |
| 築年月 |
| 昭和44年3月 |
| 施工主 |
| 土地権利 |
| 所有権 |
| 管理費 |
| 8,300円 |
| 施工会社 |
| 大成建設株式会社 |
| 修繕積立金 |
| 15,000円 |
| 管理会社 |
| 東京互光株式会社 |
| 引渡 |
| 売却済み |
| リフォーム・リノベーション |
| ≪ペットリノベーション≫ フローリング交換、ペットスペース新設、エアーイー(イオン発生器)1ヵ所新設、消臭クロス張替え(玄関・ダイニング・洋室①・洋室②) ≪通常リノベーション≫ システムキッチン交換(食洗機付き)、浴室内全交換、洗面化粧台交換、シャワートイレ交換、防水パン交換、給湯器交換、エアコン3台新設、間仕切り3枚引き戸、全室照明交換 【2018年9月1日完成】 |
| 設備 |
| エレベーター |
| 備考 |
受付時間/9:00-18:00 定休日/第1.2火曜日・毎週水曜日