売却済み
サンモール青葉台

大人気地域『横浜市青葉区』フルリノベーション物件!!
田園都市線『青葉台駅』の西口を出て南に真っ直ぐ4分歩くと、サンモール青葉台へ到着します。
築年は古い物件ですが、エレベーターもあり集合ポスト等、共有部分もきれいに管理されております。
お部屋は、日当たり良好!さらに白を基調としているので、明るい印象のお部屋です。
物件動画
物件概要
| 物件名 | サンモール青葉台 | 価格 | |
|---|---|---|---|
| 所在地 | 神奈川県横浜市青葉区つつじが丘 | 構造規模 | 鉄筋コンクリート造地上5階地下1階建 |
| 交通 | 東急田園都市線『青葉台駅』 徒歩4分 | 用途地域 | 第一種低層住居専用地域、近隣商業地域 |
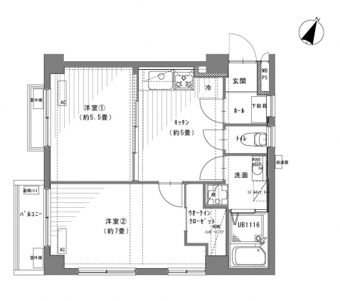
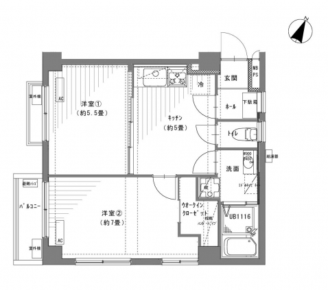
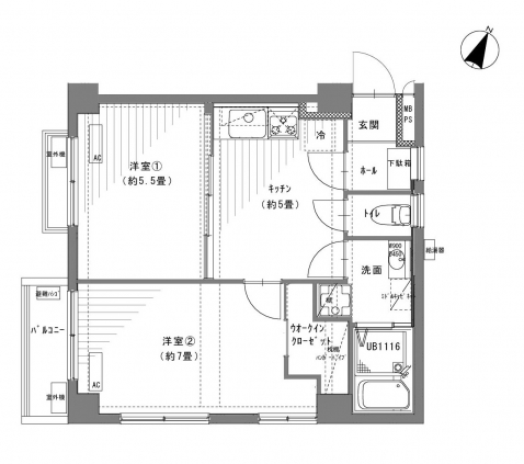
| 間取り/面積 | 2DK | 土地面積 | |
| 建物面積 | 42.84㎡ | 駐車場 | - |
| 建ぺい率 ・容積率 |
総戸数 | 30戸 | |
| 築年月 | 1973年9月 | 施工主 | |
| 土地権利 | 所有権 | 管理費 | |
| 施工会社 | 株式会社親和建設 | 修繕積立金 | |
| 管理会社 | 株式会社東急コミュニティー | 引渡 | 売却済み |
| リフォーム・ リノベーション |
《リノベーション内容》 システムキッチン交換(クリナップ)、浴室内交換(LIXIL)、洗面化粧台交換(Panasonic)、シャワートイレ交換(INAX)、建具交換(NODA)、フローリング交換(NODA)、ウォークインクローゼット新規設置、シューズボックス新規設置、全室照明交換、防水パン交換、全室クロス張替え、全室エアコン設置 | ||
| 設備 | エレベーター | ||
| 備考 | |||

03-6453-4661




















